Kelly Ripa and Mark Consuelos List Big Apple Penthouse
SELLERS: Kelly Ripa and Mark Consuelos
LOCATION: New York City, NY
PRICE: $24,500,000
SIZE: 6,792 square feet, 5 bedrooms, 4.5 bathrooms
YOUR MAMAS NOTES: Since we've been ill the last couple days and are, in fact, still woozy with sick and medicine, we've gotten well behind the celebrity real estate 8-ball. We notice now we missed a couple of good celebrity real estate stories such and the lower Manhattan duplex penthouse that was pushed on the open market this week by energetic and tawny skinned morning chat show hostess Kelly Ripa and her criminally handsome husband Mark Consuelos. The couple, so the stories go, first attempted to unload their unwanted penthouse over the summer of 2010 when they allowed it to be unsuccessfully shopped off market at an unknown price.
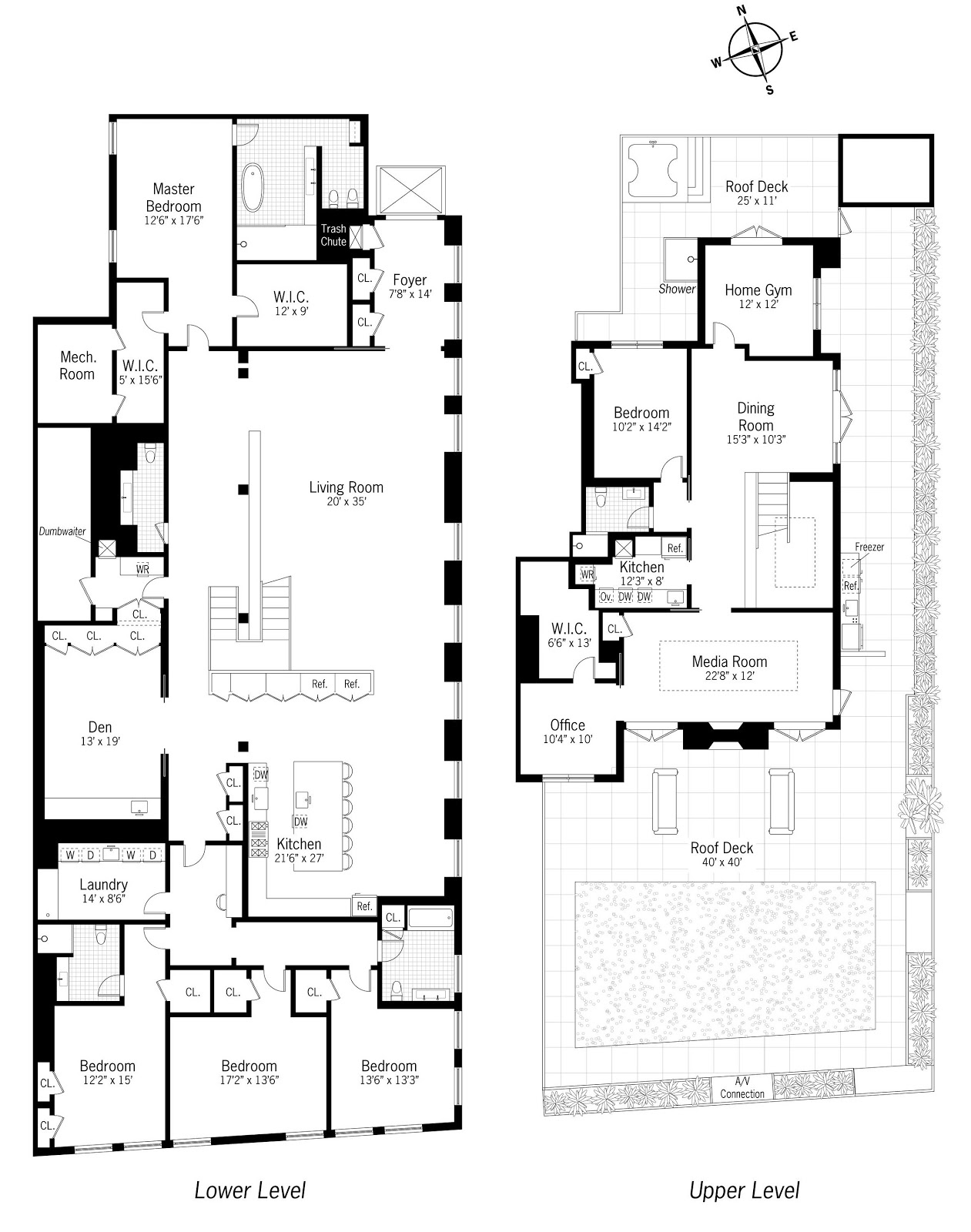
Miz Ripa and Mister Consuelos picked up the unusually-ample-for-Manhattan 6,792 square foot penthouse in June 2005 for $9,500,000 and spent the next couple of years and—no doubt—many millions more on a massive overhaul. The resulting configuration, according to the floor plan included with listing details (below), provides for five bedrooms, 4.5 bathrooms, two kitchens, two fireplaces and approximately 2,500 square feet of outdoor space thickly landscaped with privacy in mind and a medium-weight nod towards a lush and Zen-ish pan-Asian vibe that Your Mama's thoroughly unscientific research suggests is favored by celebrities.
The Ripa/Consuelos penthouse has direct, key-lock elevator access into a 14-foot foyer with two windows and two closets convenient for hanging coats and storing other wintertime accoutrement. At 35 feet long, 20 feet wide and more than 12 feet high, the adjoining living room is indisputably spacious and well-lit through five over-sized southeast-facing windows. We're not sure who's responsible for the hotel lobby-like day-core but whomever it was was absolutely committed to red as the only accent color in an other wise neutral-toned space finished with dark stained white oak floors, pale parchment colored walls and a coffered ceiling.
The vivid red accent color theme continues right on into the open concept kitchen/dining room where every seating option is upholstered in the same red fabric. The kitchen has a boxcar-sized center island, both marble and blue stone counter tops, a six-burner commercial-grade range, two dishwashers and three integrated refrigerators. Listing details make a point of pointing out that the dishwashers are Electrolux brand, no coincidence when you consider Miz Ripa has shilled for the Swedish household appliance maker for years.
Tucked off a long and wide rear corridor is an unfortunately windowless den/office with wet bar and lots of closets, a half bathroom and a compact service hall with wine refrigerator and a dumbwaiter that efficiently ferries food and etc. to the second floor service kitchen.
The south end of the rear corridor opens to the guest/family bedroom wing where there are three bedrooms, two bathrooms—one a hall bath shared by two bedrooms, the other a private en suite—a built-in homework/computer station, and an unusually large laundry room equipped with two sets of washers and dryers that, if Miz Ripa knows what's good for her her future spokesperson income, had better be manufactured by Electrolux too.
The northern terminus of the rear corridor opens into the privately situated master bedroom comprised of an entry vestibule flanked by a pair of walk-in closets and a modestly sized bedroom with two west facing windows that ensure morning darkness. the attached two-room, and unfortunately windowless bathroom suite (above) is luxuriously kitted out with radiant heated marble floors, a freestanding soaking big enough for Miz Ripa and Mister Consuelos, a separate room for the terlit and bee-day that promotes privacy, and a sexily cantilevered, all-marble two sink vanity surmounted by a wide mirrored expanse.
The penthouse's second level is easily less than half the size of the lower level but could easily function as a completely separate apartment. The airy dining room (above, left) has a table with—natch—eight red chairs and the nearby galley style service kitchen is surely bigger and better equipped then the vast majority of kitchens in Manhattan. The media room/lounge (above, right), all done up in dulcet shades of gray and white and exuberantly flooded with natural light by a massive sky light, is anchored on its south wall by an austerely monolithic stone chimney breast with an inexplicably and unnecessarily off-center fire box.
There's also, upstairs, a smallish, fifth bedroom located off a short hallway with a three-quarter bathroom and two more rooms that could be utilized as bedrooms but are shown on the floor plan as a home gym and a small office with a large walk-in closet.
The media room, dining room and gym all open through French doors to the lush landscaped wrap around roof terrace. The media room joins to a south-facing, pergola-shaded outdoor living room with fireplace and television and beyond that a sizable expanse of faux-grass. The dining room opens to the narrow, eastern side that's shielded from peeping neighbors by a tall row of evergreen trees and outfitted with an outdoor kitchen/barbecue center. The northern end of the roof terrace was privatized with a fence of horizontal slatting fronted by a somewhat anemic looking row of bamboo. There's a t.v. mounted into the fencing behind the raised hot tub and, tucked around the corner, an outdoor shower. There really are so few wonderful things as showering outdoors and showering outdoors in the middle of Manhattan, well, children, that is a particularly delicious kind of thrilling, isn't it?
Your Mama isn't really sure what Miz Ripa and Mister Consuelo's real estate future holds. We do know that while they remodeled this penthouse they lived in a large rented apartment uptown so perhaps they're headed thataway. Or maybe they've set their sights on some leafy, ridiculously upscale suburb where their three children can live a more bucolic life. Bueller? Bueller? Anyone? Bueller?
As far as we know, the only other residential real estate owned by Miz Ripa and/or Mister Consuelos is a totally land-locked, two-ish acre north of the highway estate in Southampton, NY they purchased over the summer in 2004 for $2,350,000.
The Ripa/Consuelos penthouse tops a boutique building right on the edge of the SoHo and NoLiTa nabes that may be wee in size but has always attracted an unusual number of high-profile residents. In March 2004 Gawker Media honcho Nick Denton shelled out $1,870,000 for a half floor unit and in early 2010 the other half of Mister Denton's floor was sold to Oscar-nominated actor Samuel L. Jackson for $3,995,000. In early 2005 a full floor unit on the third floor was sold for $6,830,000 to movie mogul Harvey Weinstein who sold it about 2.5 year later, in the fall of 2007, for $8,000,000. Some say Mister Weinstein never actually lived there but instead used the apartment to shelter visiting celebrities and other Showbiz bigwigs and VIPS, but we really have no idea of the veracity of that scuttlebutt.
The penthouse, the one being sold by Mister Consuelos and Miz Ripa, is widely rumored to have once been owned by German tennis icon Boris Becker who—allegedly—briefly leased it to Nicole Kidman for around forty grand a month.
And, as it turns out, this isn't the only unit at the red brick boutique building that Miz Ripa and Mister Consuelos have owned. In March 2002 they shelled out $2,800,500 for a full floor unit on the fifth floor. Property records show they sold the 5,262 square foot unit in January 2006 for $7,250,000 to banker Michael Rubinoff who quickly flipped the unit at a substantial loss in November (2006) for $6,700,000. The buyer, hotelier Edward Scheetz, didn't stay long and sold in May 2008 for $8,700,000 to private investor Robert Goergen Jr. and his wife Stacey.
listing photos and floor plan: The Modlin Group




